Swiss Cleanroom Community

Blog

Wachstum im Betrieb - Enge in den Umkleiden? Pharmatronic hilft eine Lösung zu finden.

Wächst ein Pharmabetrieb, wird meist die Produktionskapazität vergrößert und gleichzeitig der Materialfluss optimiert. So weit so gut. Das Mehr an Maschinen und bewegtem Material bedingt meist, dass es mehr Mitarbeitende braucht.

In Ausnahmefällen hat der Betrieb bereits genug Reserven in den Umkleidebereichen.
In vielen Fällen ist es leider anders.
Oft lauten die beiden Kernfragen: Wie bringt man alles Notwendige in der Umkleide unter, wenn das vorhandene Platzangebot nur minimal ist? Wie hält man gleichzeitig die regulatorischen und gesetzlichen Anforderungen ein?

Sie ahnen es bestimmt, es gibt nicht die eine richtige Antwort auf beide Fragen.

Mit den verschiedenen Akteuren zu reden und die bekannten Regelwerke zu spezifischen Werten zu konsultieren, dürfte jedem klar sein. Ein guter Einstieg für bauliche Aspekte, unter anderem für Umkleiden, sind zum Beispiel die frei verfügbaren technischen Regeln für Arbeitsstätten (ASR) in Deutschland oder Unterlagen der SUVA.
Ein Architekt kann als Fachmann im Bauwesen erste Lösungen aus dieser Sicht einordnen und erste Kostenschätzungen erstellen. Selten kennt er die Abläufe in einem regulatorischen Umfeld.
Mit dieser Herangehensweise entsteht eine erste URS-Fassung mit der die Umsetzung in Angriff genommen werden kann. Oft vergeht bis zu diesem Zeitpunkt ein halbes Jahr.

500

Der Faktor Zeit wirkt sich bei der Umsetzung in unterschiedlicher Weise direkt aus:

  1. Die Umkleide sollte bereits kurz vor den neuen Produktionskapazitäten verfügbar sein
  2. Die meisten Akteure bleiben nicht untätig und optimieren Ihre Abläufe während des Projektablaufs
  3. Die Kunden und Behörden beeinflussen die Umsetzung unter gewissen Umständen
  4. Die Kosten wachsen nicht nur mit den Anforderungen, sondern auch im Verlauf der Zeit

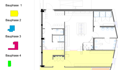
Die Pharmatronic AG hat für einen Kunden zum Beispiel mehrere Teilprojekte in einem bestehenden Produktionsgebäude zusammengefasst und in unterschiedliche Bauphasen unterteilt, um diesen Projektrisiken Rechnung zu tragen.

Die Bauphasen waren so gewählt, dass der laufende Betrieb nur gering beeinflusst wird und die dringend benötigten neuen Umkleiden für Mitarbeitende zuerst fertig gestellt wurden. Andere Bauphasen hatten andere spezifische Schwerpunkte, die Veränderungen im Verlauf des Projektes zuließen.

Das Bauen im Bestand ist abgesehen von den oben erwähnten Punkten eine Königsdisziplin. Oft sind die Herausforderungen für sich gesehen nicht sehr komplex, aber solche, die den Faktor Zeit in mehrfacher Weise ins Spiel bringen. Warum man von einer Königsdisziplin sprechen muss, erläutern wir gern in einem späteren Newsletter.

Fazit: Ein gutes Requirement, Engineering und Projektmanagement bilden die Basis, um die gesteckten Ziele erfolgreich umzusetzen. Gleichzeitig muss man einplanen, dass der Faktor Zeit – besonders beim Bauen im Bestand – ein rigides Umsetzen einer URS beziehungsweise des Pflichtenhefts erfordert.

Autoren Martin W. Wilkinson und Francois Matthey

Pharmatronic AG
Hohenrainstrasse 10
CH-4133 Pratteln
www.pharmatronic.ch

Ansprechpartner
Vito Cerone
Geschäftsleiter
v.cerone@pharmatronic.ch

 

 

Es freut uns, wenn Sie diesen Blogbeitrag kommentieren. Kommentar erfassen    118   Gefällt mir      387